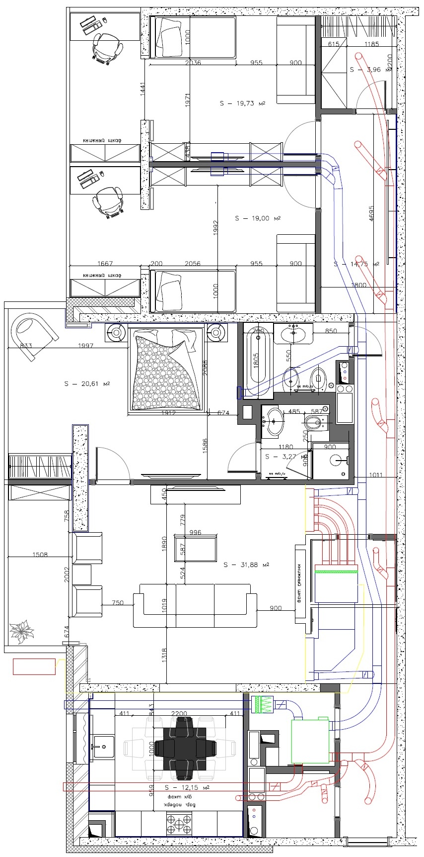
Квартира 110 кв.м., кондиционирование, вентиляция Мосфильмовская
Примеры выполненных работ по монтажу вентиляции
Кондиционирование и приточно-вытяжная вентиляция.
Объект: Квартира 120кв.м., Москва, Мосфильмовская ул. д1.Бренды: Mitsubishi Electric.
Основное оборудование:
Кондиционирование:
Сплит-система, зал: Канальный кондиционер Mitsubishi Electric SEZ-KD50VAQ / SUZ-KA50VA4.
Вентиляция:
Приточно-вытяжная установка: Mitsubishi Electric Lossnay LGH-50RX5.
Клапан с электроприводом: Заслонка 200d 2шт.
Фильтр класса F7.
Основные гибкие теплошумоизолированные вентканалы: SonoDFA-S 203 мм SonoDFA-S 160 мм
Описание:
Кондиционирование на основе канального кондиционера.
Внешние блоки кондиционера монтируются на стене балкона.
Вентиляционная установка приточно-вытяжная, сохраняет работоспособность до -15, позволяет с высокой эффективностью осуществлять возврат тепла и влаги, не требует отвода дренажа.
Фильтрация: Корпус и фильтр изготовленны под заказ (панельный G4 + карманный F7)
Особенности:
Вентиляционная установка перевернута, что бы не делать пересечений вентиляционных каналов в квартире (штатная функция).
Точки забора и выброса воздуха перенесены на боковую часть вентустановки (штатная функция)
Монтаж приточно-вытяжной установки осуществляется на потолок в ограниченном пространстве.
Подача воздуха осуществляется через встроенные в стену адаптеры.
Адаптеры проектируются под объект и изготавливаются под заказ.
Данные адаптеры имеют входные и выходные открытые стороны на разных уровнях, что позволяет встроить их в стену, и уменьшить высоту опуска и не портить потолок со стороны входа в адаптер.
Вытяжка осуществляется в коридоре через потолочные диффузоры.
Вентиляция зала осуществляется через решётки кондиционера.
Все интересующие Вас вопросы можно задать менеджеру или техническому специалисту.
Характеристики
|
Галерея
|
Загрузить |

